電話でのお問い合わせは045-573-2528
〒230-0001 横浜市鶴見区矢向6−7−13
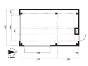
約15坪!坪単価8,800円の1階店舗です。
事務所・教室・美容室・倉庫・診療所・歯科医院などの利用にオススメ!!
スケルトン渡しなので、間取りを自由に作ることができます。場所は塚越商店街沿いに位置しています。
最寄りのJR矢向駅までは、平坦な道を歩いて10分ほどです。
是非、一度ご内覧ください!!
*** お問合わせお待ちしております。 ***











| 賃料 | 132,000円 | 管理費 | 2,200円/月 |
|---|---|---|---|
| 所在地 | 川崎市幸区塚越2-162 | 敷金 | 約7.5ヶ月(100万円) |
| 最寄駅 | JR南武線「矢向」駅 徒歩10分 | 礼金 | 1ヶ月 |
| 坪数 | 15坪 | 駐車場 | 無 |
| 面積 | 49.5u | 駐輪場 | 無 |
| 構造 | 鉄骨造 3階建 1階部分 | 鍵交換費用 | 90,000円(税込) |
| 現況 | 空家 | 保険等 | 加入義務要 |
| 入居日 | 即時 | 賃貸保証 | 201,300円/3年(賃料等150%) |
| 契約期間 | 3年間 | 初期費用例 | 合計 1,689,500円 |